- 価格
- 2,900万円
- 種別
- 中古戸建
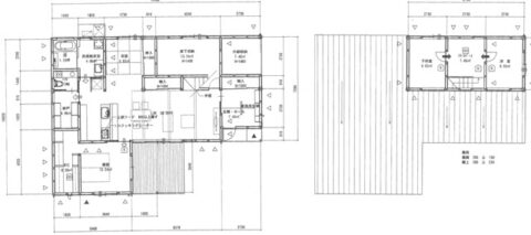
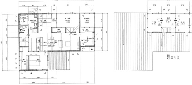
- 間取
- 4SLDK
-
- 所在地
- 宮崎県都城市南横市町
- 交通
- JR日豊本線 西都城駅 徒歩4,100m 徒歩55分
バス(加治屋 停歩3分)
物件詳細
| 築年月 | 平成28年6月 | 新築/中古 | 中古 |
|---|---|---|---|
| 面積 | 123.38m² (37.32坪) | 計測方式 | |
| バルコニー | 向き | ||
| 建物階数 | 地上1階 | 部屋階数 | |
| 建物構造 | 木造 | ||
| 建築面積 | 144.59m² | ||
| 間取内容 |
LDK 23畳 1階 和室 6畳 1階 洋室 8畳 1階 S 5畳 1階 S 3畳 1階 S 8畳 1階 洋室 6畳 1.5階 洋室 6畳 1.5階 その他 4.5畳 1.5階 4SSSLDK+フリースペース |
||
| 駐車場 | 取引態様 | 専任 | |
| 引渡/入居時期 | 相談 | 現況 | 居住中 |
| 地目 | 宅地 | 用途地域 | 無指定 |
| 都市計画 | 非線引き区域 | 地勢 | 平坦 |
| 土地面積 | 328.94m² ( 99.5坪) | 土地面積計測方式 | 公簿 |
| 建ぺい率 | 70% | 容積率 | 200% |
| 土地権利 | 所有権 | 接道状況 | 一方 |
| 接道方向1 | 南 | 接道間口1 | 21.8m |
| 接道種別1 | 公道 | 接道幅員1 | 4.1m |
| 周辺環境 |
西小 西中 西小学校まで約550m、西中まで約1km |
||
| 設備・条件 | 太陽光発電9.5kw搭載。2028年まで売電単価28円で継続し、売電収入が期待できます。
契約終了後は自家消費や蓄電池活用で電気代削減も可能です。 |
||
| 物件番号 | C006 | ||
| 特記事項 | こだわりを随所に感じるスキップフロアのある一邸。開放感のあるおしゃれな空間デザインと、驚くほど充実した収納計画が魅力の中古住宅です。生活導線を意識した使いやすい間取りで、毎日の暮らしが快適に。デザイン性と住みやすさを兼ね備えた、特別感のある住まいをお探しの方におすすめです。 | ||
Loading...
※物件掲載内容と現況に相違がある場合は現況を優先と致します。


