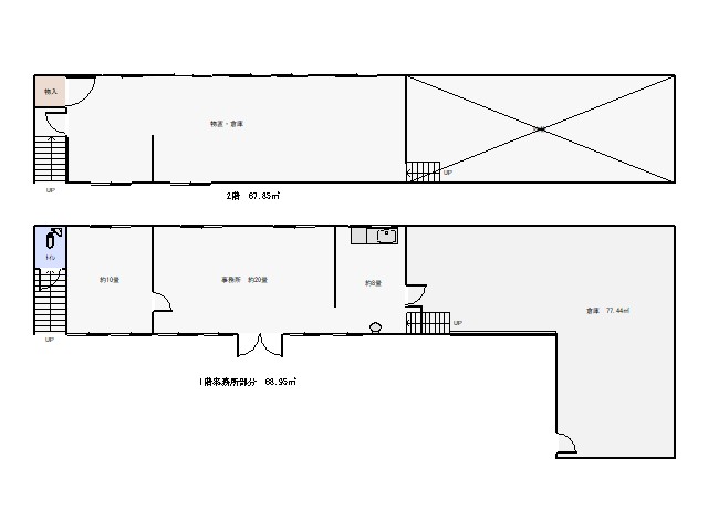
2階部分は賃貸には含みませんが使用は可能です。
倉庫部分に雨漏れがあり現況渡しとなります。
2階部分は賃貸には含みませんが使用は可能です。
倉庫部分に雨漏れがあり現況渡しとなります。
| 築年月 | 新築/中古 | ||
|---|---|---|---|
| 面積 | 146.39m² (44.28坪) | 計測方式 | |
| バルコニー | 向き | ||
| 建物階数 | 地上2階 | 部屋階数 | |
| 建物構造 | 鉄骨造 | ||
| 間取内容 | |||
| 駐車場 | 取引態様 | 専任 | |
| 引渡/入居時期 | 即時 | 現況 | 空家 |
| 土地面積 | 705m² ( 213.26坪) | 土地面積計測方式 | |
| 周辺環境 |
大王小 小松原中 |
||
| 設備・条件 | トイレ専用 エアコン 公営水道 排水下水 駐車場有 | ||
| 物件番号 | TE017 | ||
| 特記事項 | 仲介手数料:126,500円 初回保証委託料:126,500円 | ||